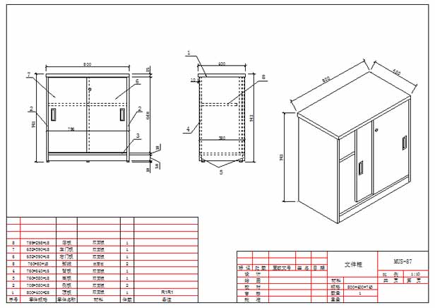
文件柜全图设计